Rovnou na obsah Rovnou na menu
Menu
Obec Žarošice
Žarošice
oficiální stránky obce

Parákovo - studie k nahlédnutí

Parákovo - studie k nahlédnutí

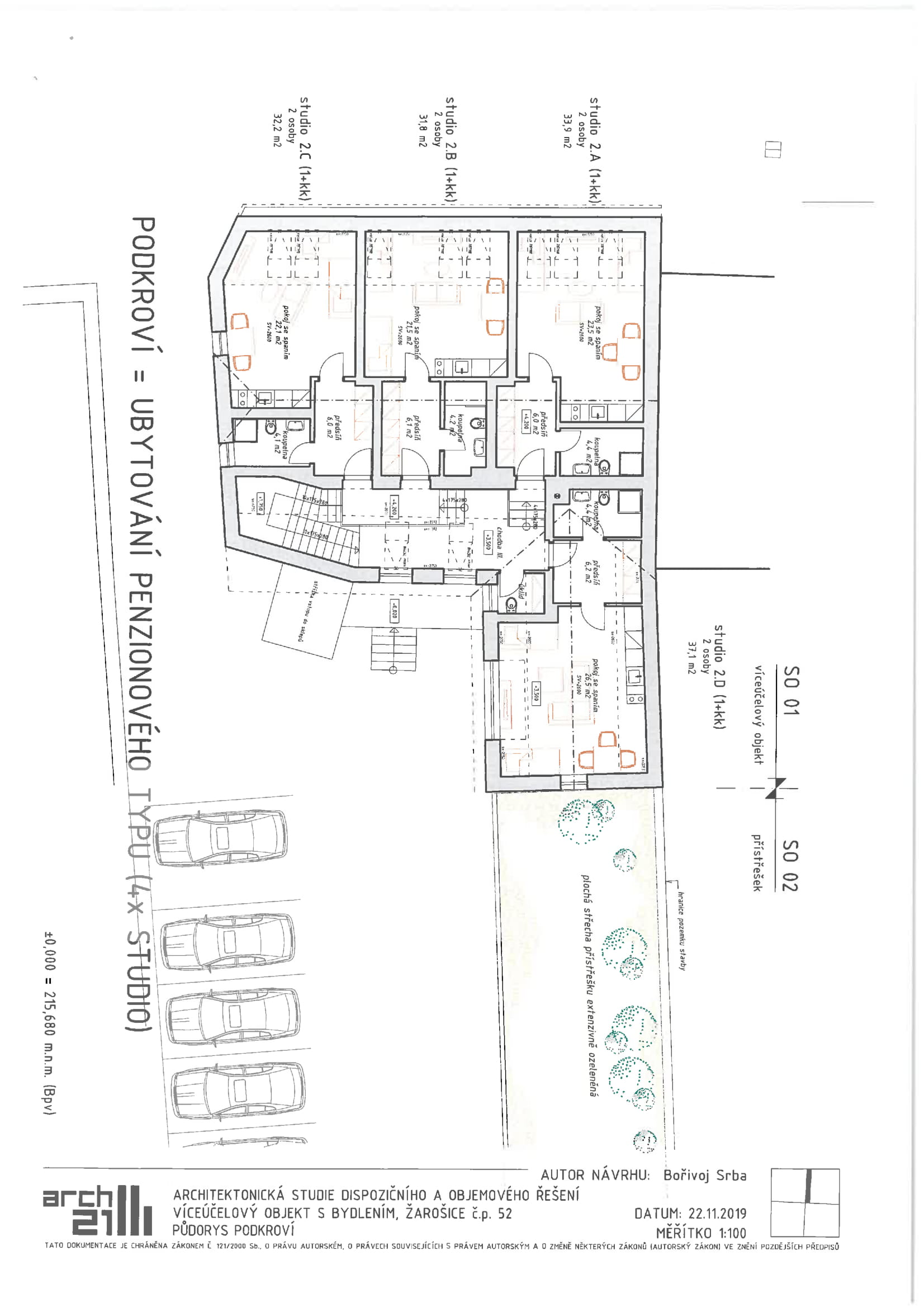
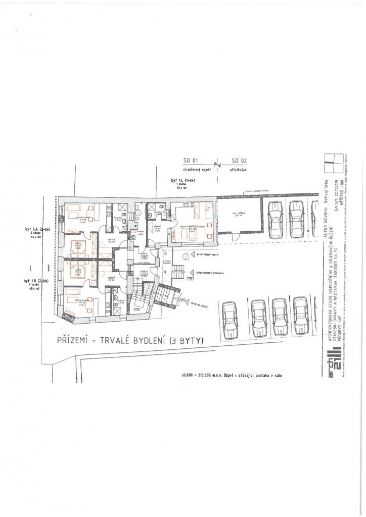
Obec Žarošice připravuje rekostrukci bývalé objektu na Parákovém. V odkazu naleznete studii plánované rekonstrukce.

Přílohy

Přízemí

S22C-6e19112621430-1.jpg
Typ souboru: JPG obrázek, Velikost: 192,2 kB

první patro

S22C-6e19112621430-2.jpg
Typ souboru: JPG obrázek, Velikost: 259,39 kB

sklepy

S22C-6e19112621430-3.jpg
Typ souboru: JPG obrázek, Velikost: 175,25 kB
Datum vložení: 6. 12. 2019 9:38
Datum poslední aktualizace: 12. 9. 2024 10:17
Autor: Správce Webu

Aktuálně

Kalendář

Březen2026
Po Út St Čt So Ne
23 24 25 26 27 28 1
2 3 4 5 6 7 8
9 10 11 12 13 14 15
16 17 18 19 22
24 25 26 27 28 29
30 31 1 2 3 4 5

Mobilní aplikace

Sledujte informace z našeho webu v mobilní aplikaci – V OBRAZE.

Odkazy

CzechPOINT

Obec Žarošice